Tetravan Folding Shower 2.1 with Magnetic Zipped Curtain
What’s Included
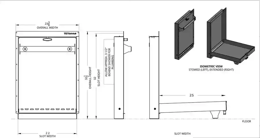
Tetravan folding shower unit (matte black finish)
Custom magnetic zipped shower curtain (Front, Left, or Right opening options)
Upgraded stainless steel shower head with adjustable flow control
Quick-connect hose, mixer valve, and shower head mount (pre-installed shower port system)
Scandvik 1.5" straight drain fitting for efficient water management
Magnetic zipped mesh storage pouch for hose and curtain
Tetravan Folding Shower 2.1 – Space-Saving Van Shower System
Upgrade your van build with the Tetravan Folding Shower 2.1, the next evolution of the original Tetravan shower system. Designed for van life, RVs, trailers, and boats, this compact shower solution delivers a full indoor shower experience without sacrificing valuable living space.
Space-Saving Folding Design
Quick Setup: Fold down the integrated shower pan and attach the magnetic zipped curtain—ready in under a minute
Compact Storage: Folds neatly away when not in use to keep your interior clean and uncluttered
Smart Integration: Designed to fit seamlessly into tight van layouts
Built for Van Life & Mobile Living
Ideal for camper vans, RVs, trailers, and boats
Compatible with popular platforms like Sprinter, Transit, and ProMaster builds
Provides a true indoor shower experience anywhere you travel
Durable materials designed for long-term use in mobile environments
Key Benefits
Maximizes space without permanent bulky installations
Fast deployment for convenience on the road
Easy water management with integrated drain system
Clean storage solution keeps your setup organized
| Folding Shower Entry Point | Front Entry or Right Side Entry or Left Side Entry |



































